Mehr anzeigen zum Thema Ausstattung
Ausstattung
- helle und moderne Büroräume mit Größen zwischen 17 m² und 55 m²
- flexible Raumaufteilung möglich
- hochwertiger und strapazierfähiger Teppichboden vorhanden
- Sanitär und Teeküchen vorhanden
- Duschmöglichkeiten
- Glasfaseranschluss
- Datenverkabelung vorhanden
- Technik- und Serverflächen vorhanden
- 80 Stellplätze in objekteigener Tiefgarage
- zusätzliche Außenstellplätze
- flexible Raumaufteilung möglich
- hochwertiger und strapazierfähiger Teppichboden vorhanden
- Sanitär und Teeküchen vorhanden
- Duschmöglichkeiten
- Glasfaseranschluss
- Datenverkabelung vorhanden
- Technik- und Serverflächen vorhanden
- 80 Stellplätze in objekteigener Tiefgarage
- zusätzliche Außenstellplätze
Mehr anzeigen zum Thema Beschreibung
Beschreibung
Das 1995 neu errichtete Büro- und Geschäftsgebäude befindet sich in einer zentralen Stadtteillage, nur ca. 1,1 km vom Stadtzentrum entfernt und ist sowohl mit dem Auto, Bus und Bahn sehr gut zu erreichen.
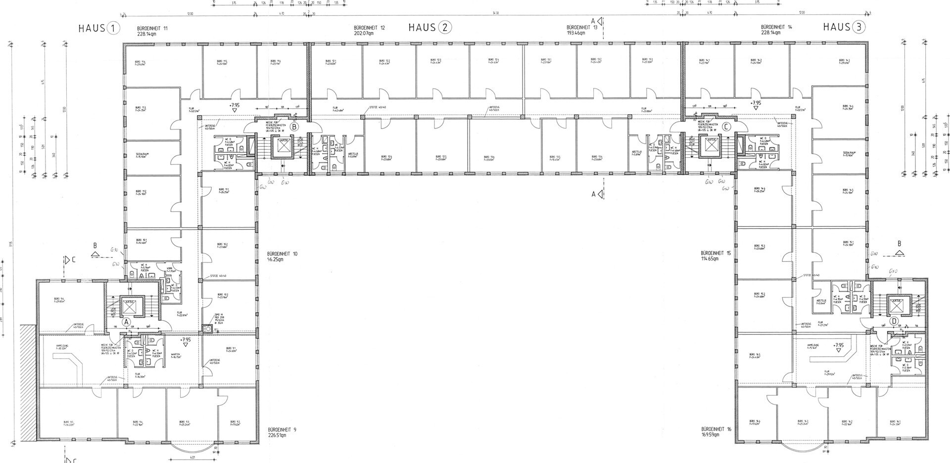
Der zur Zeit vakante Büroanteil erstreckt sich über insgesamt 4 Etagen und umfasst eine Gesamtfläche von ca. 5.500 m². Durch die Gebäudestruktur mit insgesamt 4 Erschließungskernen können die insgesamt 33 hellen und modernen Büroräume mit Größen zwischen 17 und 55 m² zu individuellen Büroeinheiten zusammengelegt werden.
Flächenaufteilung je Etage:
1. OG ca. 1.450 m²
2. OG ca. 1.450 m²
3. OG ca. 1.450 m²
4. OG ca. 1.150 m²
Die Flächen lassen sich individuell und bedarfsgerecht zusammenführen.
Das Objekt bietet somit die ideale Voraussetzung für eine flexible Flächengestaltung.
Die Verkabelung und Haustechnik sind auf aktuellem Stand und können auf zusätzlichen Bedarf nachgerüstet werden. Schnelles Internet ist durch Glasfaseranschluß gegeben.
Zusätzlich Um- und Ausbauten können je nach Bedarf durchgeführt werden.
Der zur Zeit vakante Büroanteil erstreckt sich über insgesamt 4 Etagen und umfasst eine Gesamtfläche von ca. 5.500 m². Durch die Gebäudestruktur mit insgesamt 4 Erschließungskernen können die insgesamt 33 hellen und modernen Büroräume mit Größen zwischen 17 und 55 m² zu individuellen Büroeinheiten zusammengelegt werden.
Flächenaufteilung je Etage:
1. OG ca. 1.450 m²
2. OG ca. 1.450 m²
3. OG ca. 1.450 m²
4. OG ca. 1.150 m²
Die Flächen lassen sich individuell und bedarfsgerecht zusammenführen.
Das Objekt bietet somit die ideale Voraussetzung für eine flexible Flächengestaltung.
Die Verkabelung und Haustechnik sind auf aktuellem Stand und können auf zusätzlichen Bedarf nachgerüstet werden. Schnelles Internet ist durch Glasfaseranschluß gegeben.
Zusätzlich Um- und Ausbauten können je nach Bedarf durchgeführt werden.
Mehr anzeigen zum Thema Lage
Lage
Das Büro- und Geschäftshaus befindet sich in gut frequentierter Lage im Stadtteil Gablenz, nur ca. 1,1 km vom Stadtzentrum entfernt.
Die Anbindung an den ÖPNV ist sehr gut. So hält der Bus direkt vor dem Objekt und die Bahn ist auch nur 200 m entfernt.
Die Anbindung an den ÖPNV ist sehr gut. So hält der Bus direkt vor dem Objekt und die Bahn ist auch nur 200 m entfernt.
Mehr anzeigen zum Thema Sonstige Angaben
Sonstige Angaben
Ein auf Ihre Wünsche und Anforderungen maßgeschneidertes Angebot erarbeiten wir dann gern mit Ihnen zusammen.
Die hier zur Verfügung gestellten Informationen dienen als Vorabinformation. Überzeugen Sie sich im Rahmen einer persönlichen Besichtigung vom Objekt.
Die Anmietung über Anett Richter Immobilien erfolgt für den Mieter provisionsfrei.
Die Aktualisierung des Energieausweises befindet sich gerade in der Erstellung.
Die hier zur Verfügung gestellten Informationen dienen als Vorabinformation. Überzeugen Sie sich im Rahmen einer persönlichen Besichtigung vom Objekt.
Die Anmietung über Anett Richter Immobilien erfolgt für den Mieter provisionsfrei.
Die Aktualisierung des Energieausweises befindet sich gerade in der Erstellung.
Mehr anzeigen zum Thema Sonstige Angaben
Energieausweis
- Nutzungsart
- Gewerbe
- Baujahr lt. Energieausweis
- 1995
- Endenergieverbrauch (Strom)
- 6 kWh/(m²a)
- Endenergieverbrauch (Wärme)
- 66 kWh/(m²a)
- Energieausweis
- Verbrauchsausweis
- Energieausweis gültig bis
- 24.04.2024
- wesentlicher Energieträger
- Erdgas schwer